福島県いわき市ミッドタワーいわき
賃貸物件
- 賃料18.5万円 (月額)
- 1805号室
- 2LDK
- 62.89 ㎡
- Point 1
- 新築未入居の分譲賃貸です
- Point 2
- 高層階・免震構造・24時間セキュリティで守られたタワーレジデンス
- Point 3
- 充実した収納と室内全室フローリング、複層ガラスやリビング床暖房完備で快適な暮らしがかないます
- 即入居可
- モニタ付インターホン
- IHクッキングヒーター
- 食器洗浄乾燥機
- オートバス
- 追焚機能
- 浴室乾燥機
- 温水洗浄便座
- ウォークインクローゼット
- シューズINクローゼット
- 常時ゴミ出し可能
- 免震構造
Outline物件概要
| 所在地 | 福島県いわき市平並木の杜1(地番) |
|---|---|
| 交通 | JR常磐線「いわき」駅徒歩3分 |
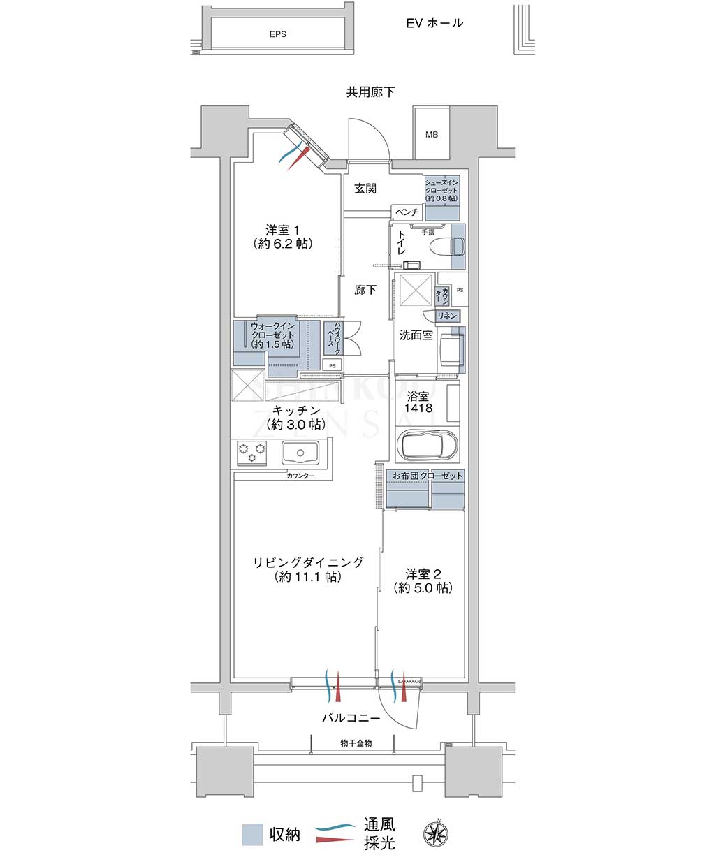
| 間取タイプ | 2LDK |
| 賃料 | 18.5万円(月額) |
| 礼金 | 2ヶ月 |
| 敷金 | 2ヶ月 |
| 保証金 | - |
| 更新料 | 新賃料 1ヶ月 |
| 構造・規模 | RC(免震構造)造21階建 |
| 使用部分面積 | 壁芯62.89m² バルコニー8.50m² |
| 間取内訳 | 2LDK(洋 6.2・5 LDK 14.1) |
|---|---|
| 築年月 | 2024年02月 |
| 契約期間 | 2年 |
| 管理費等 | - |
| 駐車場 | ※要確認 |
| 現況 | 完成済 |
| 入居可能 | 即時 |
| 設備 | ○鍵タイプ:ディンプルキー ○都市ガス ○セキュリティ:モニター付オートロック、オートロック、モニター付インターホン、ディンプルキー、ダブルロックドア、防犯カメラ、火災警報器(報知機) |
| 保険等 | 要 2年 15,000円 |
| 備考 | ○主要採光面:南 ○賃貸保証等:加入要(賃料合計の50%~80%) ○管理形態:日勤 ○取引態様:仲介 ○仲介手数料:1.1カ月 [情報更新日:2025.11.13] |
Movie動画
是非、本物件ならではの眺望をムービーでお確かめください

- ※写真や概要等については、竣工時等過去の写真、物件販売時のパンフレット等の情報を元に記載している為、現況と異なる場合がありますのでご了承下さい。
- ※掲載中に売却済・売却中止・売却価格の変更が生じる場合がございます。予めご了承下さい。





