岩手県盛岡市キャピタルプラザ上盛岡
販売物件
- 販売価格1,780万円
- 3階
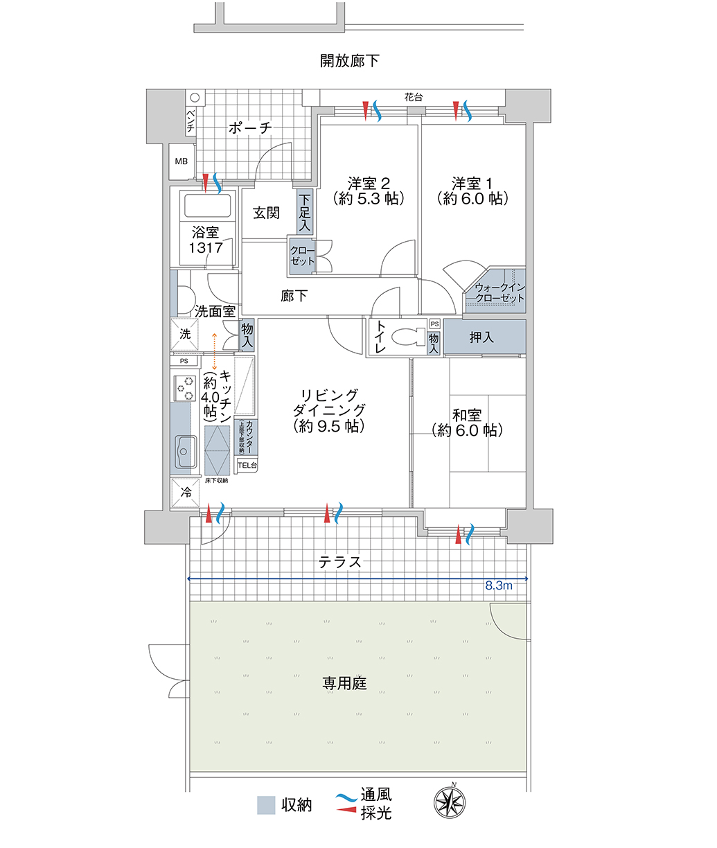
- 3LDK
- 69.77 ㎡
- Point 1
- 1階・専用テラス庭付きの3LDKのお住まいです
- Point 2
- キッチンに床下収納、リビングダイニングには床暖房を敷設
- Point 3
- 物件隣にドラッグストアがあり、小中学校やスーパー、総合病院も徒歩圏内に揃います
- 床暖房
- 即入居可
- モニタ付インターホン
- 専用庭
- オートバス
- 浴室に窓
- 追焚機能
- 温水洗浄便座
- ウォークインクローゼット
- 専用テラス
- 床下収納
Outline物件概要
| 所在地 | 岩手県盛岡市上田1丁目6-47 |
|---|---|
| 交通 | JR山田線「上盛岡」駅徒歩9分 |
| 構造 | RC 造 |
| 階数/階建 | 1階/10階 |
| 専有面積 | 壁芯69.77m² |
| バルコニー面積 | ― テラス:15.80㎡ 専用庭:約31m² |
| 間取内訳 | 3LDK/和 6.0帖 洋 6.0帖・5.3帖 LDK 13.5帖 |
| 土地権利 | 所有権 |
| 用途地域 | 近隣商業地域 |
| 築年月 | 2002年4月 |
| 総戸数 | 58戸 |
| 管理会社 | 太平ビルサービス株式会社 |
| 管理形態 | 日勤管理 |
| 管理方式 | 全面委託管理 |
|---|---|
| 管理費 | 10,460円/月 |
| 修繕積立金 | 12,520円/月 |
| その他使用料等 | 専用庭使用料:700円/月 |
| 現況 | 空家 |
| 引渡日 | 即時 |
| 駐車場 | ー |
| 施工会社 | 西松建設 |
| 売主 | アール・ジェーエステート/クレア/西松建設 |
| ペット飼育 | ー |
| 取引態様 | 専任媒介 |
| 備考 | 【学区】市立仁王小学校・市立上田中学校 【駐車場】確認中 ■情報更新日…2023.5.1 |
- ※写真や概要等については、竣工時等過去の写真、物件販売時のパンフレット等の情報を元に記載している為、現況と異なる場合がありますのでご了承下さい。
- ※掲載中に売却済・売却中止・売却価格の変更が生じる場合がございます。予めご了承下さい。





