青森県弘前市サンデュエル弘前駅前Ⅱザ・タワーズ
販売物件
- 販売価格3,100万円
- 9階
- 3LDK
- 86.54 ㎡
- Point 1
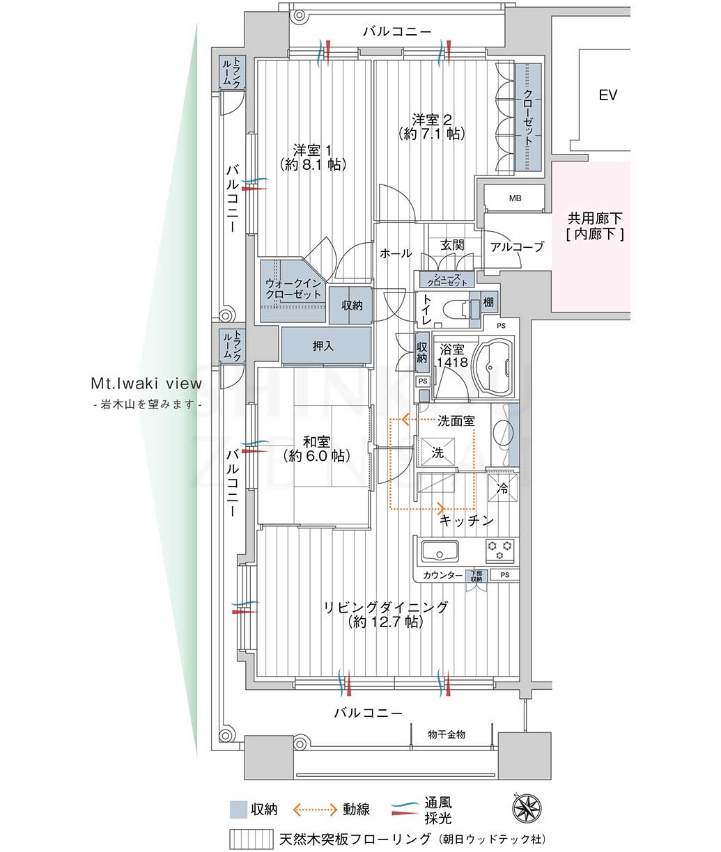
- 弘前駅徒歩4分アドレスの9階・南西角住戸3LDK+ウォークインクローゼット
- Point 2
- 三面をバルコニーに囲まれており、西面方向に岩木山を望みます
- Point 3
- キッチンを中心に洗面室・リビング・和室・廊下を回れるため、家事が捗ります
- 角部屋
- モニタ付インターホン
- 3面バルコニー
- IHクッキングヒーター
- オートバス
- 追焚機能
- 浴室乾燥機
- 温水洗浄便座
- ウォークインクローゼット
- ロードヒーティング
- 二重床・二重天井
Outline物件概要
| 所在地 | 青森県弘前市大字駅前町13-3 |
|---|---|
| 交通 | JR奥羽本線「弘前」駅徒歩3分 |
| 構造 | SRC 造 |
| 階数/階建 | 9階/15階 |
| 専有面積 | 86.54m² |
| バルコニー面積 | 28.33m² |
| 間取内訳 | 3LDK(和 6 洋 8.1・7.1 LDK 15.7) |
| 土地権利 | 所有権 |
| 用途地域 | 商業地域 |
| 築年月 | 2006年9月 |
| 総戸数 | 42戸 |
| 管理会社 | 日本ハウズイング |
| 管理形態 | 日勤管理 |
| 管理方式 | 全面委託管理 |
|---|---|
| 管理費 | 13,800円 |
| 修繕積立金 | 6,000円 |
| 現況 | 所有者居住中 |
| 引渡日 | 相談 |
| 施工会社 | 松井建設 |
| 売主 | サンシティ |
| ペット飼育 | 小型犬可 猫可 1住戸2匹迄(規約あり) |
| 取引態様 | 一般媒介 |
| 備考 | 【学区】市立大成小学校・市立第三中学校 [情報更新日:2025.12.24] |
- ※写真や概要等については、竣工時等過去の写真、物件販売時のパンフレット等の情報を元に記載している為、現況と異なる場合がありますのでご了承下さい。
- ※掲載中に売却済・売却中止・売却価格の変更が生じる場合がございます。予めご了承下さい。





