岩手県盛岡市クレア住吉四季彩の丘
販売物件
- 販売価格3,150万円
- 10階
- 4LDK
- 110.89 ㎡
- Point 1
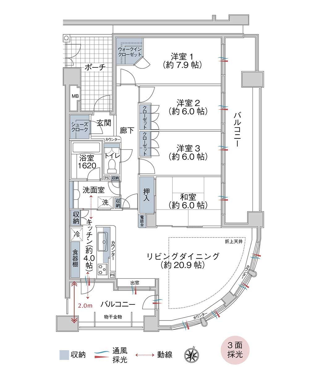
- 高層階10階・約110㎡、ゆとりの4LDKの南東角住戸です
- Point 2
- リビングダイニングの曲線開口部や二面のバルコニーから光と風が多様なライフスタイルを実現
- Point 3
- 敷地内機械式駐車場に空きございます(サイズ要確認・月額6,500円)
- 角部屋
- 2面バルコニー
- オートバス
- 追焚機能
- 浴室乾燥機
- 温水洗浄便座
- ウォークインクローゼット
- シューズINクローゼット
- 独立型ポーチ
Outline物件概要
| 所在地 | 岩手県盛岡市住吉町13-30 |
|---|---|
| 交通 | JR東北本線「盛岡」駅バス13分「天満宮前」バス停徒歩3分 |
| 構造 | SRC 造 |
| 階数/階建 | 10階/14階 |
| 専有面積 | 110.89m² |
| バルコニー面積 | 29.28m² |
| 間取内訳 | 4LDK|和 6.0 洋 7.9・6.0・6.0 LDK 24.9 |
| 土地権利 | 所有権 |
| 用途地域 | 第一種住居地域 |
| 築年月 | 2003年10月 |
| 総戸数 | 128戸 |
| 管理会社 | 寿広 |
| 管理形態 | 日勤管理 |
| 管理方式 | 全面委託管理 |
|---|---|
| 管理費 | 15,520円 |
| 修繕積立金 | 16,630円 |
| 現況 | 所有者居住中 |
| 引渡日 | 相談 |
| 駐車場 | 有 6,500円/月 |
| 施工会社 | 西松建設 |
| 売主 | クレア/西松建設 |
| ペット飼育 | - |
| 取引態様 | 専任媒介 |
| 備考 | *2025年3月 大規模修繕工事済 *2017年1月 トイレ交換・クッションフロア張替済【学区】市立城南小学校徒歩6分・市立城東中学校徒歩11分・岩大附属小学校徒歩7分・岩大附属中学校徒歩7分 【駐車場】敷地内機械式駐車場空き有り(サイズ要確認)*情報更新日…2025.12.24 |
- ※写真や概要等については、竣工時等過去の写真、物件販売時のパンフレット等の情報を元に記載している為、現況と異なる場合がありますのでご了承下さい。
- ※掲載中に売却済・売却中止・売却価格の変更が生じる場合がございます。予めご了承下さい。





