秋田県秋田市アークシティ築地第2
販売物件
- 販売価格1,280万円
- 6階
- 65.95
- 2LDK ㎡
- Point 1
- 秋田駅徒歩7分アドレス、2019年にキッチンや水まわりをリフォーム済
- Point 2
- 雨や雪を凌ぐ屋内共用廊下に面したお部屋です
- Point 3
- 徒歩10分圏内に小中学校や総合病院が揃います
- 角部屋
- モニタ付インターホン
- 2面バルコニー
- IHクッキングヒーター
- 食器洗浄乾燥機
- 浴室乾燥機
- 温水洗浄便座
- 4面採光
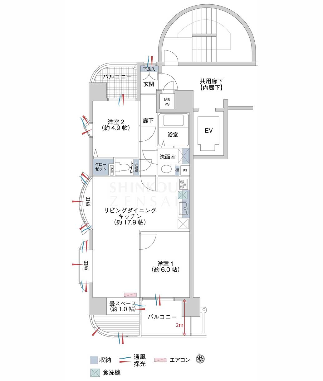
Outline物件概要
| 所在地 | 秋田県秋田市南通築地4-10 |
|---|---|
| 交通 | JR奥羽本線「秋田」駅 徒歩7分 |
| 構造 | SRC 造 |
| 階数/階建 | 6階/14階 |
| 専有面積 | 65.95m² |
| バルコニー面積 | 9.83m² |
| 間取内訳 | 2LDK|洋 6.0帖・4.9帖 LDK 17.9帖 |
| 土地権利 | 所有権 |
| 用途地域 | 商業地域 |
| 築年月 | 1991年7月 |
| 総戸数 | 67戸 |
| 管理会社 | 株式会社北東ビルサービス |
| 管理形態 | 常駐管理 |
| 管理方式 | 全面委託管理 |
|---|---|
| 管理費 | 13,740円/月 |
| 修繕積立金 | 11,210円/月 |
| 現況 | 空室 |
| 引渡日 | 即時 |
| 駐車場 | ー |
| 施工会社 | 清水建設株式会社東北支店 |
| 売主 | 橘産業株式会社 |
| ペット飼育 | ー |
| 取引態様 | 一般媒介 |
| 備考 | 【学区】市立中通小学校徒歩9分・市立秋田南中学校徒歩6分 【駐車場】近隣ご紹介いたします *情報更新日…2025.10.30 |
- ※写真や概要等については、竣工時等過去の写真、物件販売時のパンフレット等の情報を元に記載している為、現況と異なる場合がありますのでご了承下さい。
- ※掲載中に売却済・売却中止・売却価格の変更が生じる場合がございます。予めご了承下さい。





