秋田県秋田市ベルドゥムールランドマーク秋田
販売物件
- 販売価格2,180万円
- 10階
- 2SLDK
- 68.79 ㎡
- Point 1
- 中通エリア×地上30階建てのタワーレジデンス
- Point 2
- 前面棟がなく眺望良好な10階・南向き2LDK+サービスルーム
- Point 3
- 29階にはオーナー専用の天然温泉展望風呂と花火を鑑賞できる千秋公園側に展望ラウンジがございます
- 即入居可
- モニタ付インターホン
- オートバス
- 浴室乾燥機
- 温水洗浄便座
- ウォークインクローゼット
Outline物件概要
| 所在地 | 秋田県秋田市中通1-1-33 |
|---|---|
| 交通 | JR奥羽本線「秋田」駅徒歩10分 |
| 構造 | RC 造 |
| 階数/階建 | 10階/30階 |
| 専有面積 | 壁芯68.79m² |
| バルコニー面積 | 6.78m² |
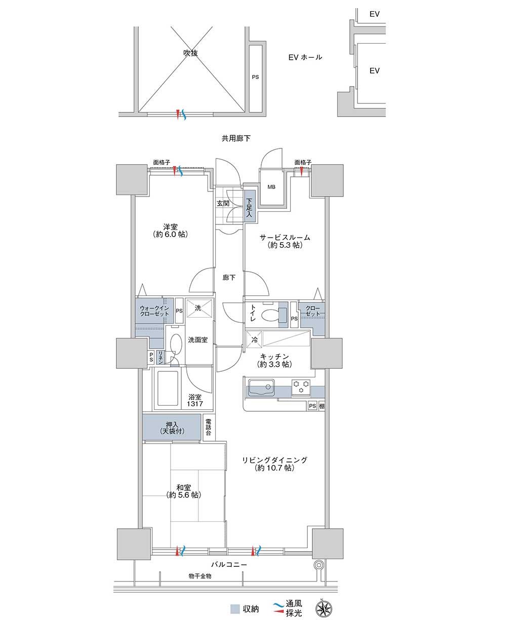
| 間取内訳 | 2SLDK(和5.6 洋6.0 納戸5.3 LD10.7 K3.3) |
| 土地権利 | 所有権 |
| 用途地域 | 商業地域 |
| 築年月 | 2003年7月 |
| 総戸数 | 169戸 |
| 管理会社 | 友愛ビルサービス |
| 管理形態 | 日勤管理 |
| 管理方式 | 全面委託管理 |
|---|---|
| 管理費 | 10,300円/月 |
| 修繕積立金 | 7,300円/月 |
| その他使用料等 | 温泉維持管理費:6,800円/月 |
| 現況 | 空室 |
| 引渡日 | 即日 |
| 施工会社 | 間組 |
| 売主 | リベレステ/高星産業 |
| ペット飼育 | 2匹迄可能 |
| 取引態様 | 媒介 |
| 備考 | [情報更新日:2025.12.24] |
- ※写真や概要等については、竣工時等過去の写真、物件販売時のパンフレット等の情報を元に記載している為、現況と異なる場合がありますのでご了承下さい。
- ※掲載中に売却済・売却中止・売却価格の変更が生じる場合がございます。予めご了承下さい。





