福島県いわき市グランフォセットいわきリバーサイド
販売物件
- 販売価格2,800万円
- 4階
- 3LDK
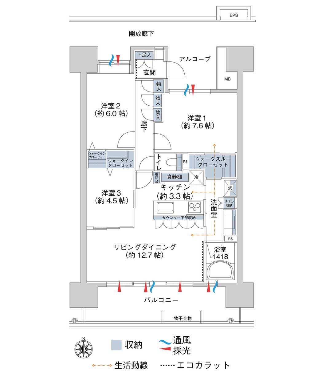
- 79.01 ㎡
- Point 1
- キッチン~洗面室へ周遊性の高い動線確保
- Point 2
- ウォークスルークローゼット完備
- Point 3
- 毎日の買い物に便利な商業施設ペッペが徒歩5分にございます
- 即入居可
- モニタ付インターホン
- エアコン
- オートバス
- 浴室に窓
- 追焚機能
- 浴室乾燥機
- 温水洗浄便座
- ウォークインクローゼット
- リビング・玄関エコカラット施工
- アウトフレーム工法
Outline物件概要
| 所在地 | 福島県いわき市平字上川原75 |
|---|---|
| 交通 | JR常磐線「いわき」駅徒歩13分 |
| 構造 | RC 造 |
| 階数/階建 | 4階/15階 |
| 専有面積 | 壁芯79.01m² |
| バルコニー面積 | 15.40m² |
| 間取内訳 | 3LDK(洋 7.6・6・4.5 LDK 16) |
| 土地権利 | 所有権 |
| 用途地域 | 商業地域 |
| 築年月 | 2016年3月 |
| 総戸数 | 125戸 |
| 管理会社 | 東北パートナーズコミュニティ |
| 管理形態 | 日勤管理 |
| 管理方式 | 全面委託管理 |
|---|---|
| 管理費 | 11,900円 |
| 修繕積立金 | 7,100円 |
| 現況 | 空室 |
| 引渡日 | 即時 |
| 駐車場 | 要確認 |
| 施工会社 | 金田建設 |
| 売主 | 東北パートナーズリアルエステート |
| ペット飼育 | 2匹迄可能 |
| 取引態様 | 専任媒介 |
| 備考 | 【学区】市立平第三小学校・市立平第二中学校 【設備】エアコン3台(クリーニング済)/全室照明あり [情報更新日:2025.12.24] |
- ※写真や概要等については、竣工時等過去の写真、物件販売時のパンフレット等の情報を元に記載している為、現況と異なる場合がありますのでご了承下さい。
- ※掲載中に売却済・売却中止・売却価格の変更が生じる場合がございます。予めご了承下さい。





