秋田県秋田市ヴァンベール中通
販売物件
- 販売価格1,750万円
- 10階
- 3LDK
- 73.09 ㎡
- Point 1
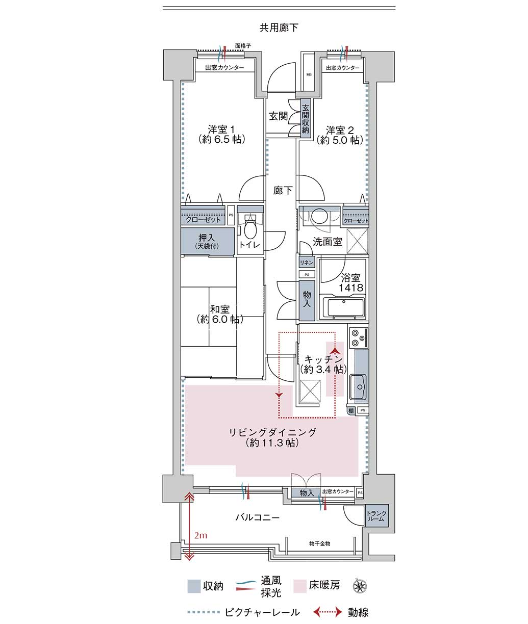
- 中通三丁目アドレス、高層階10階・南向きの3LDK
- Point 2
- 2WAY動線の独立型キッチンを採用
- Point 3
- リビングとキッチンに床暖房敷設で寒い冬も快適です
- 床暖房
- モニタ付インターホン
- 食器洗浄乾燥機
- オートバス
- 追焚機能
- 浴室乾燥機
- 温水洗浄便座
- トランクルーム
- 駐車場有 14,500円/月
Outline物件概要
| 所在地 | 秋田県秋田市中通3-3-48 |
|---|---|
| 交通 | JR奥羽本線「秋田」駅徒歩13分 |
| 構造 | SRC 造 |
| 階数/階建 | 10階/15階 |
| 専有面積 | 壁芯73.09m² |
| バルコニー面積 | 10.97m² |
| 間取内訳 | 3LDK|和 6.0 洋 6.5・5.0 LDK 14.7 |
| 土地権利 | 所有権 |
| 用途地域 | 商業地域 |
| 築年月 | 2002年8月 |
| 総戸数 | 83戸 |
| 管理会社 | 株式会社穴吹コミュニティ |
| 管理形態 | 日勤管理 |
| 管理方式 | 全面委託管理 |
|---|---|
| 管理費 | 11,848円/月 |
| 修繕積立金 | 16,520円/月 |
| 現況 | 空家 |
| 引渡日 | 即時 |
| 駐車場 | 有 14,500円/月 |
| 施工会社 | 清水建設(株)東北支店 |
| 売主 | 三菱マテリアル不動産 |
| ペット飼育 | - |
| 取引態様 | 専任媒介 |
| 備考 | 【学区】市立中通小学校徒歩5分・市立秋田南中学校徒歩16分 【駐車場】敷地内平面駐車場1台空き有り(要確認)■情報更新日…2025.12.24 |
- ※写真や概要等については、竣工時等過去の写真、物件販売時のパンフレット等の情報を元に記載している為、現況と異なる場合がありますのでご了承下さい。
- ※掲載中に売却済・売却中止・売却価格の変更が生じる場合がございます。予めご了承下さい。





