神奈川県横浜市ナイスパークステイツ横濱岡野公園
販売物件
- 販売価格9,900万円
- 7階
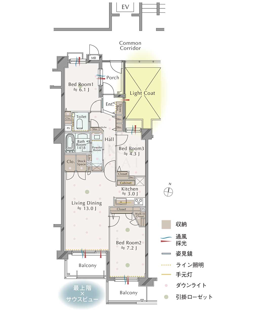
- 3LDK
- 76.24 ㎡
- Point 1
- 最上階7階の南向きのお部屋で眺望良好です
- Point 2
- 雁行型プランでプライバシーへ配慮された造りです
- Point 3
- 10~11月頃リフォーム工事完了予定です
- モニタ付インターホン
- 食器洗浄乾燥機
- オートバス
- 追焚機能
- 浴室乾燥機
- 温水洗浄便座
- ライトコート
- アンボンドスラブ工法
Outline物件概要
| 所在地 | 神奈川県横浜市西区岡野2-11 |
|---|---|
| 交通 | 相鉄本線「平沼橋」駅徒歩7分、JR東海道本線,JR根岸線,JR横須賀線,JR京浜東北線,JR湘南新宿ライン,東急東横線,京急本線,相鉄本線,みなとみらい線,横浜市営地下鉄ブルーライン「横浜」駅徒歩13分 |
| 構造 | RC 造 |
| 階数/階建 | 7階/7階 |
| 専有面積 | 壁芯76.24m² |
| バルコニー面積 | 9.76m² |
| 間取内訳 | 3LDK/洋 7.2・6.1・・4.3 LDK 16.0 |
| 土地権利 | 所有権 |
| 用途地域 | 準工業地域 |
| 築年月 | 2000年2月 |
| 総戸数 | 146戸 |
| 管理会社 | ナイスコミュニティー |
| 管理形態 | 日勤管理 |
| 管理方式 | 全面委託管理 |
|---|---|
| 管理費 | 15,080円/月 |
| 修繕積立金 | 22,870円/月 |
| 現況 | 空室 |
| 引渡日 | 相談 |
| 駐車場 | 敷地内機械式駐車場1台利用可能(無償/区画要確認) |
| 施工会社 | 三菱建設 |
| 売主 | ナイス、栄泉不動産 |
| 取引態様 | 売主 |
| 備考 | 【学区】市立平沼小学校徒歩12分・市立岡野中学校徒歩3分 【令和7年度固定資産税等】138,800円 【調度品】○リビング・ダイニングに縦型バーチカルブラインド ○各洋室にプリーツタイプシェードレース、遮光ドレープ ○各洋室にデザイン照明器具あり 【新築時施工業者及び設計事務所】三菱建設(現、ピーエス三菱)三菱地所設計 [情報更新日:2025.7.28] |
- ※写真や概要等については、竣工時等過去の写真、物件販売時のパンフレット等の情報を元に記載している為、現況と異なる場合がありますのでご了承下さい。
- ※掲載中に売却済・売却中止・売却価格の変更が生じる場合がございます。予めご了承下さい。





