秋田県秋田市クルーザーバレー八橋弐番館
販売物件
- 販売価格2,580万円
- 12階
- 4LDK
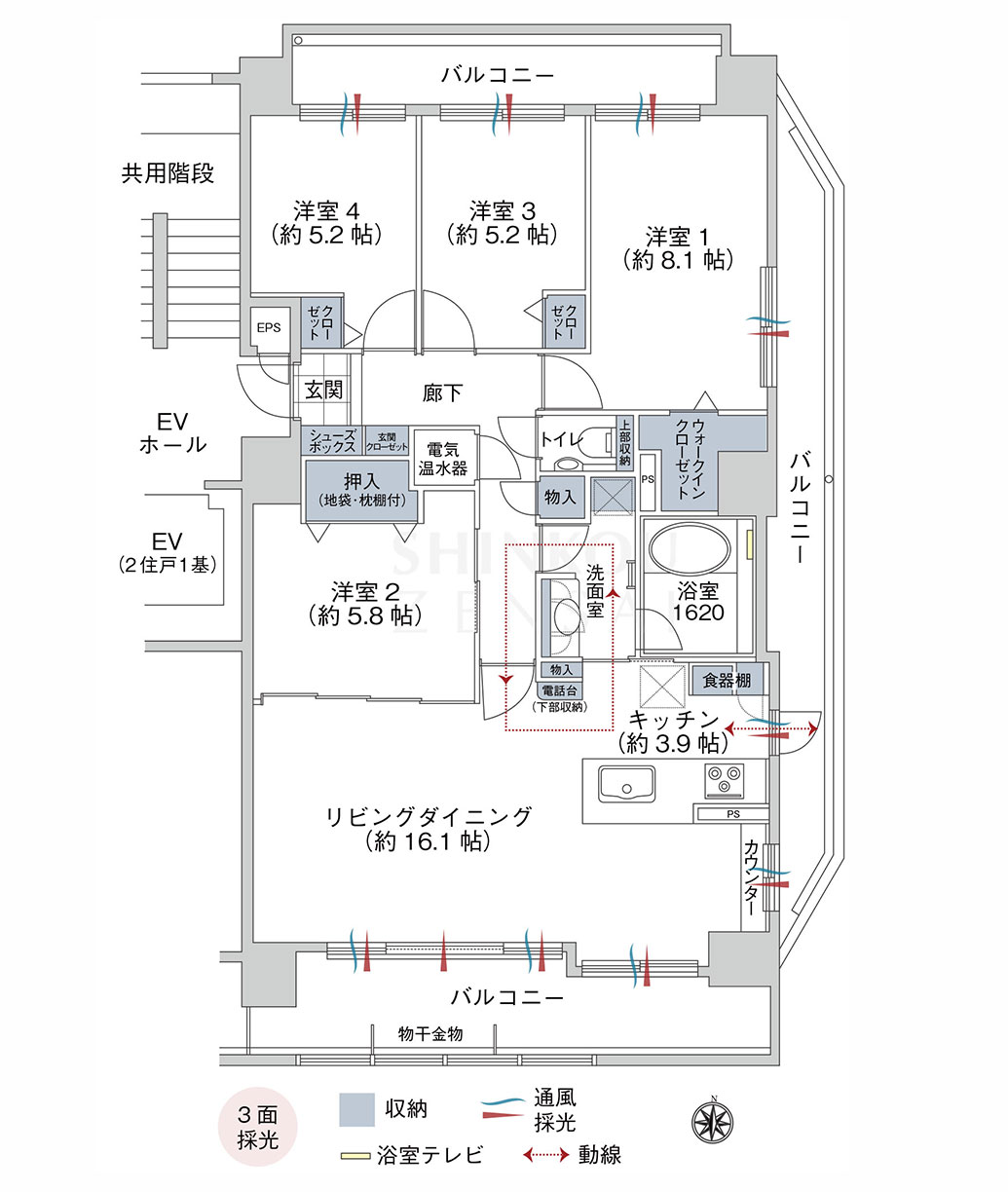
- 98.19 ㎡
- Point 1
- 新国道沿い×オール電化採用マンションの南東角住戸
- Point 2
- 小中学校や便利な商業施設が徒歩圏内に多数揃います
- Point 3
- 平面駐車場利用可能です[月額6,500円]
- 角部屋
- モニタ付インターホン
- 3面バルコニー
- IHクッキングヒーター
- 食器洗浄乾燥機
- ディスポーザー
- オートバス
- 追焚機能
- 浴室乾燥機
- 温水洗浄便座
- ウォークインクローゼット
- TV付浴室
- 平面駐車場有
Outline物件概要
| 所在地 | 秋田県秋田市八橋大畑1-8-33 |
|---|---|
| 交通 | JR奥羽本線「秋田」駅バス12分「運輸支局入口」バス停徒歩1分 |
| 構造 | RC 造 |
| 階数/階建 | 12階/15階 |
| 専有面積 | 壁芯98.19m² |
| バルコニー面積 | 32.73m² |
| 間取内訳 | 4LDK|洋 8.1・5.8・5.2・5.2 LDK 20.0 |
| 土地権利 | 所有権 |
| 用途地域 | 準工業地域 |
| 築年月 | 2007年6月 |
| 総戸数 | 76戸 |
| 管理会社 | 株式会社友愛ビルサービス |
| 管理形態 | 日勤管理 |
| 管理方式 | 全面委託管理 |
|---|---|
| 管理費 | 7,500円/月 |
| 修繕積立金 | 18,656円/月 |
| 現況 | 空室 |
| 引渡日 | 相談 |
| 駐車場 | 有 6,500円/月 |
| 施工会社 | 奥村組 |
| 売主 | フナコシヤ |
| ペット飼育 | 小型犬可 猫可 1住戸2匹迄(規約あり) |
| 取引態様 | 専任媒介 |
| 備考 | 【学区】市立八橋小学校徒歩8分・市立泉中学校徒歩10分 【駐車場】平面駐車場利用可能 【情報更新日】2025.12.24 |
- ※写真や概要等については、竣工時等過去の写真、物件販売時のパンフレット等の情報を元に記載している為、現況と異なる場合がありますのでご了承下さい。
- ※掲載中に売却済・売却中止・売却価格の変更が生じる場合がございます。予めご了承下さい。





