岩手県盛岡市クランズスクエア盛岡アーバンレジデンス
販売物件
- 販売価格3,280万円
- 7階
- 4LDK
- 91.06 ㎡
- Point 1
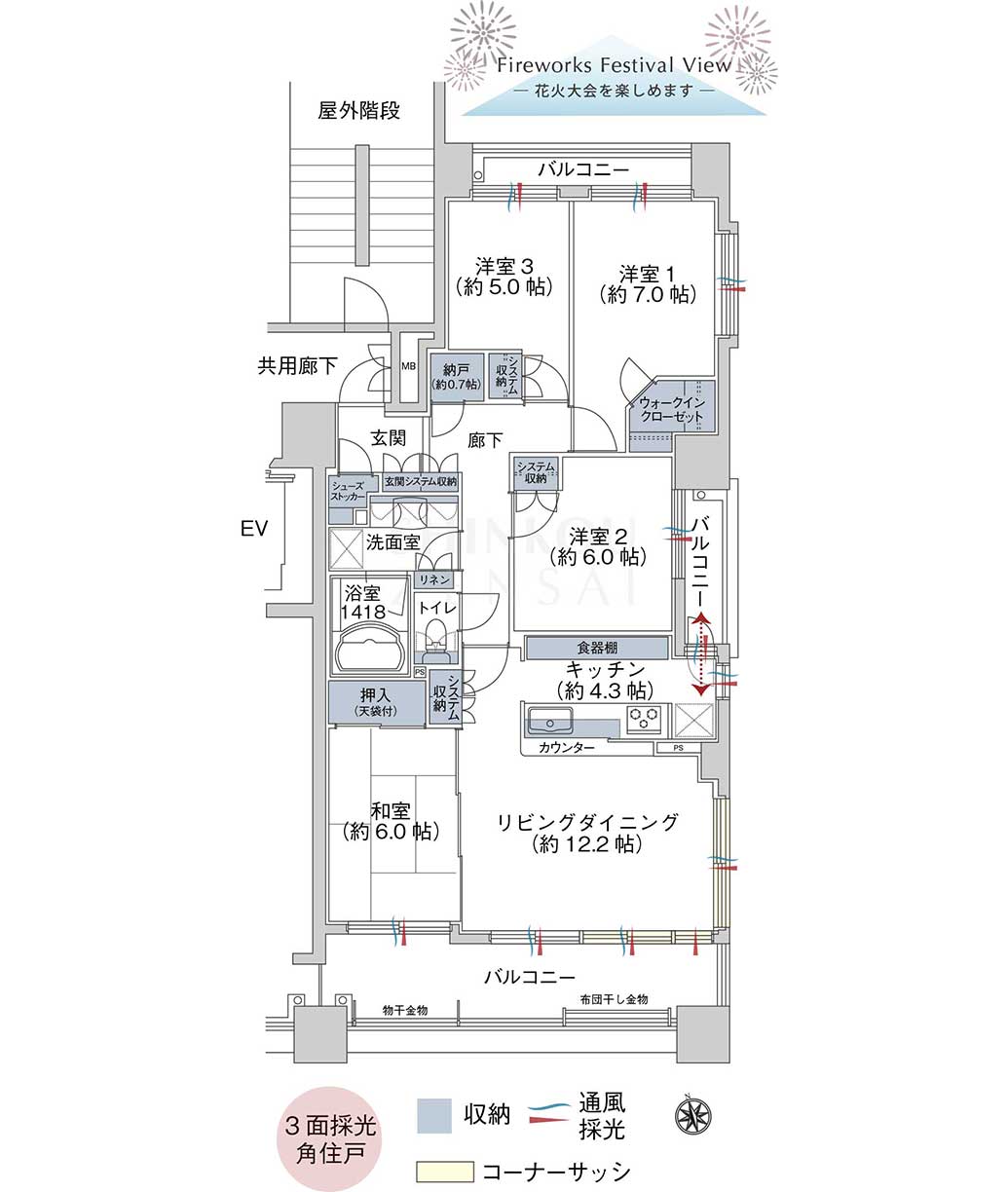
- 7階・南東角住戸・約91平米4LDK+ウォークインクローゼット
- Point 2
- 明るく開放的なコーナーサッシ採用の二面採光リビングダイニング
- Point 3
- 中心部・中央通りへのアクセス良好です
- 角部屋
- モニタ付インターホン
- 3面バルコニー
- 食器洗浄乾燥機
- オートバス
- 追焚機能
- 浴室乾燥機
- 温水洗浄便座
- ウォークインクローゼット
- 納戸収納
- 北面から花火鑑賞可能
Outline物件概要
| 所在地 | 岩手県盛岡市本町通3丁目18-40 |
|---|---|
| 交通 | JR東北本線「盛岡」駅バス5分 「中央通三丁目」バス停徒歩1分 |
| 構造 | RC 造 |
| 階数/階建 | 7階/12階(地下1階) |
| 専有面積 | 壁芯91.06m² |
| バルコニー面積 | 21.44m² |
| 間取内訳 | 4LDK(和 6 洋 7・6・5 LDK 16.5) |
| 土地権利 | 所有権 |
| 用途地域 | 商業地域、近隣商業地域 |
| 築年月 | 2006年2月 |
| 総戸数 | 76戸 |
| 管理会社 | 大和ライフネクスト |
| 管理形態 | 日勤管理 |
| 管理費 | 11,560円 |
|---|---|
| 修繕積立金 | 13,950円 |
| その他使用料等 | 町内会費:300円/月 |
| 現況 | 所有者居住中 |
| 引渡日 | 相談 |
| 駐車場 | 確認中 |
| 施工会社 | 宮城建設 |
| 売主 | 宮城開発 |
| ペット飼育 | 小型犬可 猫可 1住戸2匹迄(規約あり) |
| 取引態様 | 専任媒介 |
| 備考 | 【学区】市立桜城小学校・市立下橋中学校 [情報更新日:2025.10.30] |
- ※写真や概要等については、竣工時等過去の写真、物件販売時のパンフレット等の情報を元に記載している為、現況と異なる場合がありますのでご了承下さい。
- ※掲載中に売却済・売却中止・売却価格の変更が生じる場合がございます。予めご了承下さい。





