福島県いわき市グラン・ディ・セーラムT1
販売物件
- 販売価格1,780万円
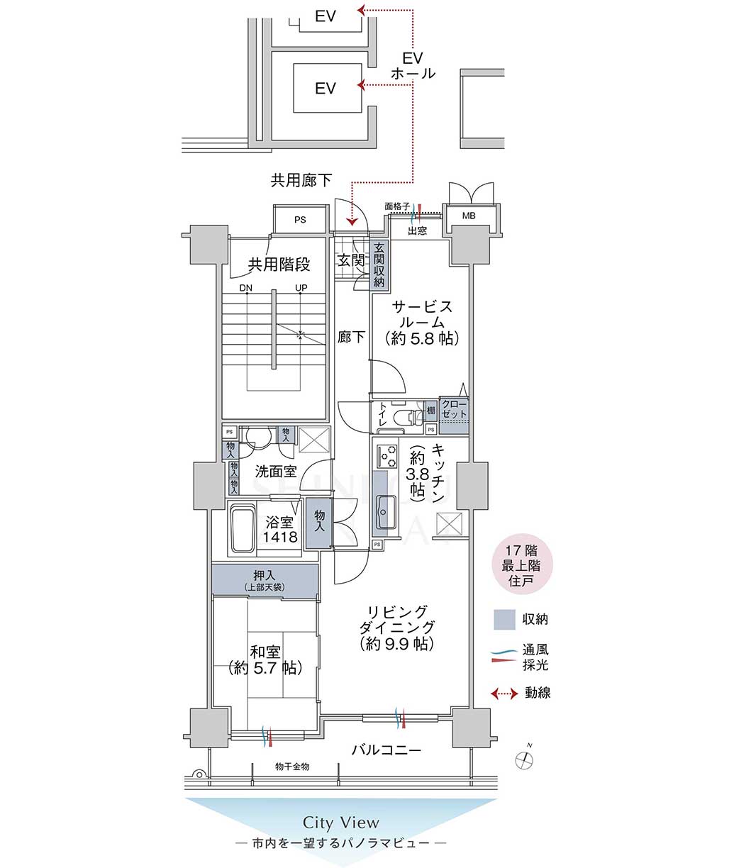
- 17階
- 1SLDK
- 65.37 ㎡
- Point 1
- 市内を一望する圧巻のパノラマビューが魅力の最上階17階・南向き1LDK+サービスルーム
- Point 2
- 【いわき駅徒歩9分アドレス】いわきワシントンホテル併設のマンション
- Point 3
- 南向きで採光通風良好な和室とリビングダイニング
- モニタ付インターホン
- 温水洗浄便座
- 南向き
Outline物件概要
| 所在地 | 福島県いわき市平字一町目1 |
|---|---|
| 交通 | JR常磐線「いわき」駅徒歩7分 |
| 構造 | RC 造 |
| 階数/階建 | 17階/17階 |
| 専有面積 | 壁芯65.37m² |
| バルコニー面積 | 9.33m² |
| 間取内訳 | 1SLDK(和 5.7 LDK 13.7 S 5.8) |
| 土地権利 | 所有権 |
| 用途地域 | 商業地域 |
| 築年月 | 2002年3月 |
| 総戸数 | 84戸 |
| 管理会社 | 平一町目都市開発 |
| 管理費 | 9,558円 |
|---|---|
| 修繕積立金 | 10,302円 |
| 現況 | 空室 |
| 引渡日 | 即時 |
| 駐車場 | 確認中 |
| 施工会社 | 清水建設/安藤・間組 |
| 売主 | 再開発事業個人施工者 |
| 取引態様 | 専任媒介 |
| 備考 | 【学区】市立第一小学校徒歩9分・市立第一中学校徒歩10分 [情報更新日:2025.12.24] |
- ※写真や概要等については、竣工時等過去の写真、物件販売時のパンフレット等の情報を元に記載している為、現況と異なる場合がありますのでご了承下さい。
- ※掲載中に売却済・売却中止・売却価格の変更が生じる場合がございます。予めご了承下さい。





