福島県白河市グランフォセット新白河
販売物件
- 販売価格2,780万円
- 1階
- 2LDK
- 70.00 ㎡
- Point 1
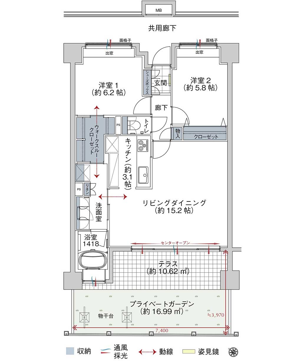
- 【メガステージ白河徒歩2分】1階・南西向き広々2LDK
- Point 2
- 洗面室・ウォークスルークローゼット・主寝室を繋げた周遊性の高いプランニング
- Point 3
- テラスと専用庭は合計で20平米超。ゆったり過ごせる広さがございます
- モニタ付インターホン
- 専用庭
- IHクッキングヒーター
- オートバス
- 浴室に窓
- 追焚機能
- 浴室乾燥機
- 温水洗浄便座
- ウォークスルークローゼット
- 室内コンディション良好
Outline物件概要
| 所在地 | 福島県白河市高山86 |
|---|---|
| 交通 | JR東北本線「新白河」駅徒歩7分 |
| 構造 | RC 造 |
| 階数/階建 | 1階/6階 |
| 専有面積 | 壁芯70.00m² |
| バルコニー面積 | テラス10.62㎡ 専用庭16.99m² |
| 間取内訳 | 2LDK(洋 6.2・5.8 LDK 18.3) |
| 土地権利 | 所有権 |
| 用途地域 | 無指定 |
| 築年月 | 2017年7月 |
| 総戸数 | 61戸 |
| 管理会社 | 東北パートナーズコミュニティ |
| 管理形態 | 日勤管理 |
| 管理方式 | 全面委託管理 |
|---|---|
| 管理費 | 12,500円 |
| 修繕積立金 | 7,400円 |
| 現況 | 所有者居住中 |
| 引渡日 | 相談 〇契約から2か月後予定 |
| 駐車場 | 有 7,000円/月 〇平面駐車場1台確保可能 |
| 施工会社 | 金田建設 |
| 売主 | 東北パートナーズリアルエステート |
| ペット飼育 | 小型犬可 猫可 1住戸2匹迄(規約あり) |
| 取引態様 | 専任媒介 |
| 備考 | 【学区】市立みさか小学校・市立第二中学校 [情報更新日:2026.3.13] |
- ※写真や概要等については、竣工時等過去の写真、物件販売時のパンフレット等の情報を元に記載している為、現況と異なる場合がありますのでご了承下さい。
- ※掲載中に売却済・売却中止・売却価格の変更が生じる場合がございます。予めご了承下さい。





