岩手県盛岡市びゅうMシティ上盛岡
販売物件
- 販売価格2,680万円
- 2階
- 3LDK
- 97.43 ㎡
- Point 1
- ゆったりとしたルーフバルコニー付きの2階・南東角住戸3LDK
- Point 2
- 下階住戸がないため生活音や足音が響く心配ございません
- Point 3
- 常時ゴミ出し可能です
- 角部屋
- モニタ付インターホン
- 2面バルコニー
- IHクッキングヒーター
- エアコン
- オートバス
- 追焚機能
- 温水洗浄便座
- ウォークインクローゼット
- 駐車場1台確保
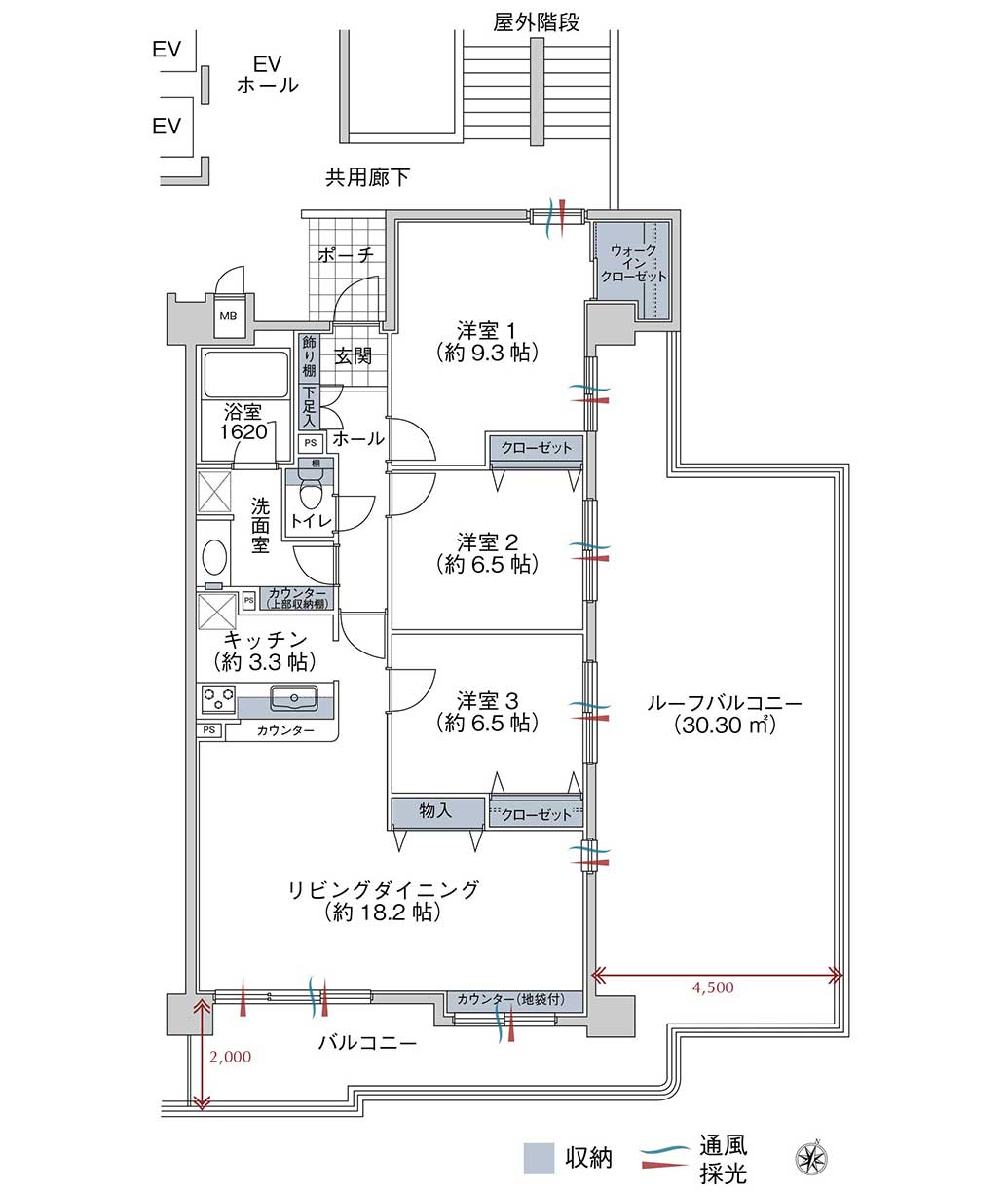
Outline物件概要
| 所在地 | 岩手県盛岡市本町通3丁目11-20 |
|---|---|
| 交通 | JR山田線「上盛岡」駅徒歩1分 |
| 構造 | SRC 造 |
| 階数/階建 | 2階/11階(地下1階) |
| 専有面積 | 壁芯97.43m² |
| バルコニー面積 | 32.45m² |
| 間取内訳 | 3LDK(洋 9.3・6.5・6.5 LDK 21.5) |
| 土地権利 | 所有権 |
| 用途地域 | 近隣商業地域 |
| 築年月 | 1999年9月 |
| 総戸数 | 92戸 |
| 管理会社 | 日本ハウズイング |
| 管理形態 | 日勤管理 |
| 管理方式 | 全面委託管理 |
|---|---|
| 管理費 | 8,200円/月 |
| 修繕積立金 | 19,500円/月 |
| その他使用料等 | 町内会費:300円/月、ルーフバルコニー使用料:200円/月 |
| 現況 | 空室 |
| 引渡日 | 相談 〇契約から2~3か月後予定 |
| 駐車場 | 有 10,000円/月 〇敷地内平面駐車場1台確保可(区画要確認) |
| 施工会社 | 宮城建設 |
| 売主 | 東日本旅行/昭和土地開発/宮城開発/岩手緑産業 |
| 取引態様 | 専任媒介 |
| 備考 | 【リフォーム履歴】〇2017年頃:浴室・洗面室交換(クリナップ製)/洗面室クッションフロア交換 〇2010年頃:キッチン・トイレ交換/リビングダイニング・廊下 フローリング上張り/リビングダイニング拡張工事 4LDK→3LDK 【学区】市立仁王小学校徒歩2分・市立上田中学校徒歩8分 [情報更新日:2025.12.24] |
- ※写真や概要等については、竣工時等過去の写真、物件販売時のパンフレット等の情報を元に記載している為、現況と異なる場合がありますのでご了承下さい。
- ※掲載中に売却済・売却中止・売却価格の変更が生じる場合がございます。予めご了承下さい。





