岩手県盛岡市Mシティ盛岡駅東
販売物件
- 販売価格3,190万円
- 14階
- 3LDK
- 78.69 ㎡
- Point 1
- 内装フルリフォーム済!◎明るく優しい印象の内装カラーを採用◎
- Point 2
- 高層階14階・南西向き3LDK
- Point 3
- 24時間営業のスーパーやドラッグストアが徒歩1分に揃います
- 即入居可
- 食器洗浄乾燥機
- オートバス
- 追焚機能
- 浴室乾燥機
- 温水洗浄便座
- ウォークインクローゼット
- 二重サッシ
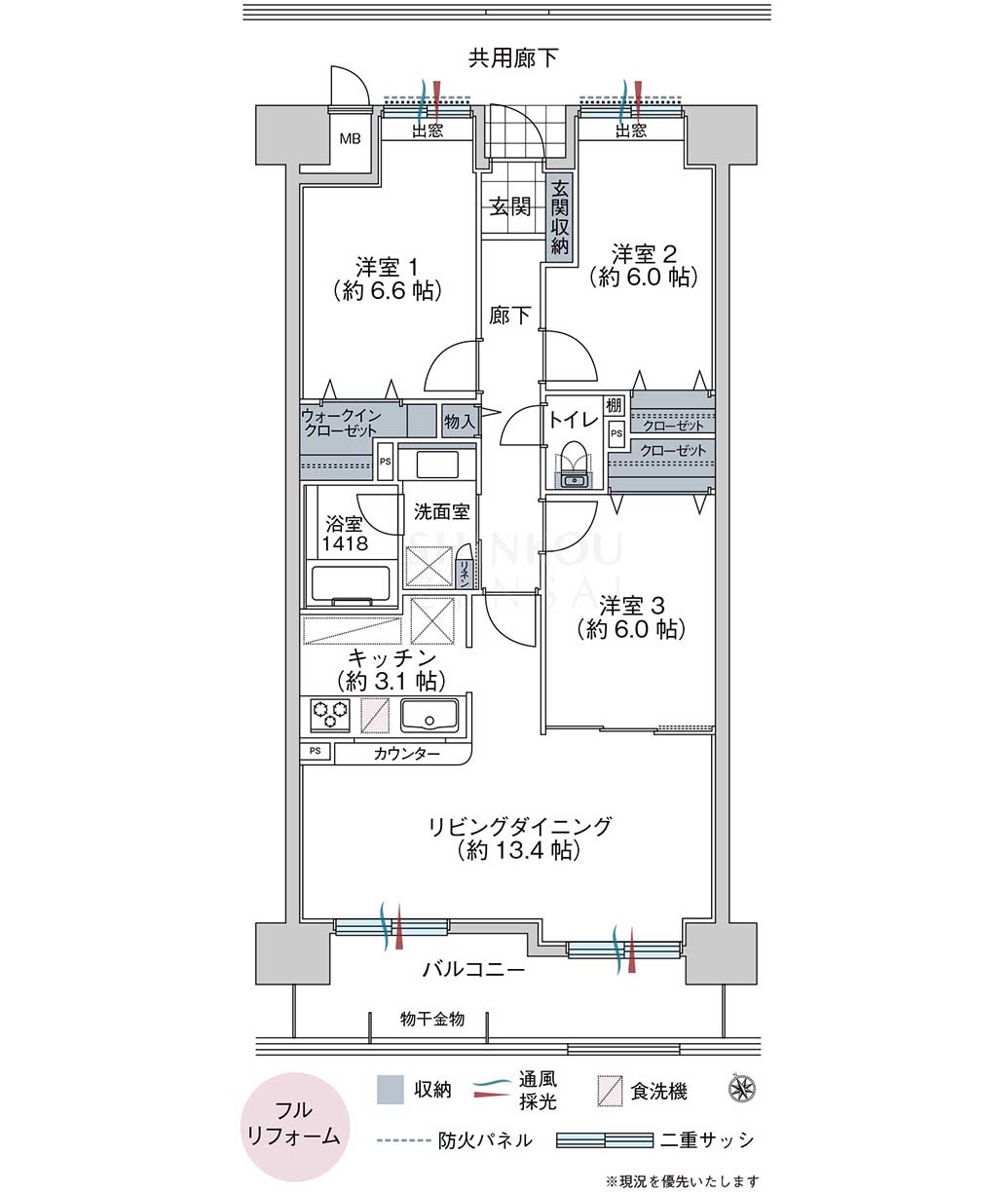
Outline物件概要
| 所在地 | 岩手県盛岡市盛岡駅前北通6-25 |
|---|---|
| 交通 | JR東北本線「盛岡」駅徒歩6分 |
| 構造 | SRC 造 |
| 階数/階建 | 14階/15階 |
| 専有面積 | 壁芯78.69m² |
| バルコニー面積 | 10.70m² |
| 間取内訳 | 3LDK(洋 6.6・6・6 LDK 16.4) |
| 土地権利 | 所有権 |
| 用途地域 | 商業地域 |
| 築年月 | 2000年9月 |
| 総戸数 | 70戸 |
| 管理会社 | 日本ハウズイング |
| 管理形態 | 日勤管理 |
| 管理方式 | 全面委託管理 |
|---|---|
| 管理費 | 6,300円 |
| 修繕積立金 | 11,700円 |
| その他使用料等 | 町内会費:3,000円/年 |
| 現況 | 空室 |
| 引渡日 | 即時 |
| 駐車場 | 敷地内タワーパーキング(区画サイズ要確認) |
| 施工会社 | 宮城建設 |
| 売主 | 宮城開発/昭和土地開発/緑産業 |
| 取引態様 | 媒介 |
| 備考 | 【学区】市立桜城小学校徒歩12分・市立城西中学校徒歩11分 [情報更新日:2026.2.27] |
Movie動画
〖南面眺望〗本物件ならではの眺望をぜひムービーでお確かめください

- ※写真や概要等については、竣工時等過去の写真、物件販売時のパンフレット等の情報を元に記載している為、現況と異なる場合がありますのでご了承下さい。
- ※掲載中に売却済・売却中止・売却価格の変更が生じる場合がございます。予めご了承下さい。





