福島県郡山市ネオステージ長者
販売物件
- 販売価格1,690万円
- 6階
- 3LDK
- 73.08 ㎡
- Point 1
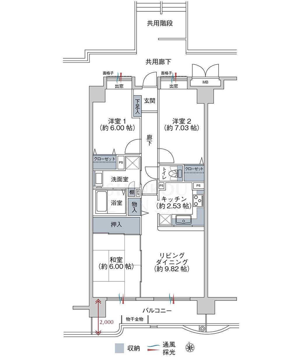
- 6階・南向き3LDK。全居室6帖以上のゆったりとしたファミリープラン
- Point 2
- 【長者一丁目アドレス】小中学校や24時間営業の商業施設が徒歩圏内に揃います
- Point 3
- 空室のため、即ご入居いただけます
- モニタ付インターホン
- 追焚機能
- 温水洗浄便座
- 照明器具
- インターネット対応
Outline物件概要
| 所在地 | 福島県郡山市長者1丁目3-18 |
|---|---|
| 交通 | JR東北本線「郡山」駅バス13分「安積黎明高校」バス停徒歩2分 |
| 構造 | SRC 造 |
| 階数/階建 | 6階/12階 |
| 専有面積 | 壁芯73.08m² |
| バルコニー面積 | 10.53m² |
| 間取内訳 | 3LDK(和 6 洋 7・6 LDK 12.3) |
| 土地権利 | 所有権 |
| 用途地域 | 近隣商業地域 |
| 築年月 | 1998年2月 |
| 総戸数 | 56戸 |
| 管理会社 | F・Kアメニティサービス |
| 管理方式 | 自主管理 |
|---|---|
| 管理費 | 9,790円 |
| 修繕積立金 | 12,320円 |
| 現況 | 空室 |
| 引渡日 | 即時 |
| 駐車場 | 確認中 |
| 施工会社 | 淺沼組 |
| 売主 | 大和団地 |
| 取引態様 | 専任媒介 |
| 備考 | 【学区】市立芳山小学校徒歩7分・市立郡山第二中学校徒歩7分 [情報更新日:2025.12.24] |
- ※写真や概要等については、竣工時等過去の写真、物件販売時のパンフレット等の情報を元に記載している為、現況と異なる場合がありますのでご了承下さい。
- ※掲載中に売却済・売却中止・売却価格の変更が生じる場合がございます。予めご了承下さい。





