福島県いわき市セレーノ城東グランマークス
販売物件
- 販売価格1,490万円
- 9階
- 2LDK+S
- 64.22 ㎡
- Point 1
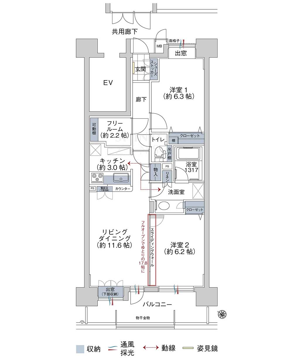
- 城東三丁目、9階・南西向きの2LDK。約2.2帖の納戸収納がございます
- Point 2
- 可動式間仕切り採用で17帖超のリビングを実現
- Point 3
- 目の前にスーパーやホームセンター、徒歩5分圏内に商業施設「ペッペ」が揃います
- モニタ付インターホン
- オートバス
- 追焚機能
- 浴室乾燥機
- 温水洗浄便座
- シャワー付洗面化粧台
- カウンターキッチン
Outline物件概要
| 所在地 | 福島県いわき市平字城東3-2-3 |
|---|---|
| 交通 | JR常磐線「いわき」駅徒歩10分 |
| 構造 | RC 造 |
| 階数/階建 | 9階/10階 |
| 専有面積 | 壁芯64.22m² |
| バルコニー面積 | 10.01m² |
| 間取内訳 | 2LDK+S|洋 6.3・6.2 LDK 14.6 S 2.2 |
| 土地権利 | 所有権 |
| 用途地域 | 工業地域 |
| 築年月 | 2001年4月 |
| 総戸数 | 56戸 |
| 管理会社 | 株式会社長谷工コミュニティ |
| 管理形態 | 日勤管理 |
| 管理方式 | 全面委託管理 |
|---|---|
| 管理費 | 9,900円/月 |
| 修繕積立金 | 15,870円/月 |
| 現況 | 所有者居住中 |
| 引渡日 | 相談 |
| 駐車場 | - |
| 施工会社 | 株式会社タナックス |
| ペット飼育 | - |
| 取引態様 | 専任媒介 |
| 備考 | 【学区】市立平第二小学校・市立平第二中学校 【引渡し】契約から2か月後予定 【駐車場】確認中 *情報更新日…2025.12.24 |
- ※写真や概要等については、竣工時等過去の写真、物件販売時のパンフレット等の情報を元に記載している為、現況と異なる場合がありますのでご了承下さい。
- ※掲載中に売却済・売却中止・売却価格の変更が生じる場合がございます。予めご了承下さい。





