福島県いわき市グランフォセットいわきリバーサイド
販売物件
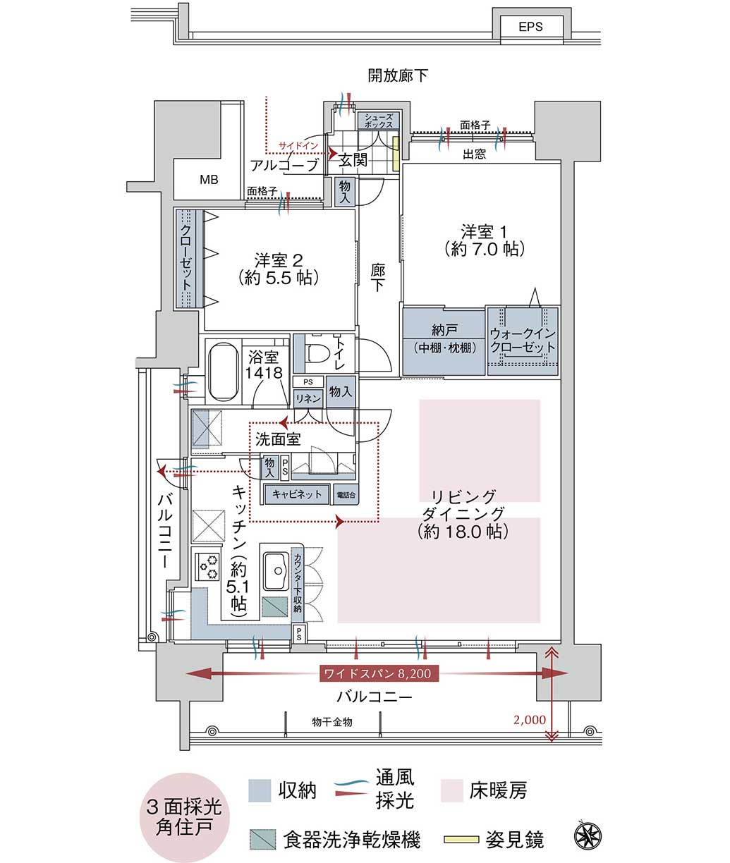
- 販売価格3,380万円
- 12階
- 2LDK
- 86.00 ㎡
- Point 1
- 新築オプション多数のお部屋で室内コンディション良好です
- Point 2
- 2系統床暖房敷設リビングは広々約18帖
- Point 3
- コの字型3WAYキッチン採用。水回りは回遊動線で機能的です
- 角部屋
- 床暖房
- モニタ付インターホン
- 2面バルコニー
- 食器洗浄乾燥機
- オートバス
- 追焚機能
- 浴室乾燥機
- 温水洗浄便座
- ウォークインクローゼット
- サイドイン玄関
- 納戸収納
Outline物件概要
| 所在地 | 福島県いわき市平字上川原75 |
|---|---|
| 交通 | JR常磐線「いわき」駅徒歩13分 |
| 構造 | RC 造 |
| 階数/階建 | 12階/15階 |
| 専有面積 | 壁芯86.00m² |
| バルコニー面積 | 21.89m² |
| 間取内訳 | 2LDK(洋 7・5.5 LDK 23.1) |
| 土地権利 | 所有権 |
| 用途地域 | 商業地域 |
| 築年月 | 2016年3月 |
| 総戸数 | 125戸 |
| 管理会社 | 東北パートナーズコミュニティ |
| 管理形態 | 日勤管理 |
| 管理方式 | 全面委託管理 |
|---|---|
| 管理費 | 12,900円 |
| 修繕積立金 | 7,700円 |
| 現況 | 所有者居住中 |
| 引渡日 | 2026年2月予定 |
| 駐車場 | 要確認 |
| 施工会社 | 金田建設 |
| 売主 | 東北パートナーズリアルエステート |
| ペット飼育 | 猫可 1住戸2匹迄(規約あり) |
| 取引態様 | 専任媒介 |
| 備考 | 【学区】市立平第三小学校・市立平第二中学校 [情報更新日:2025.12.24] |
- ※写真や概要等については、竣工時等過去の写真、物件販売時のパンフレット等の情報を元に記載している為、現況と異なる場合がありますのでご了承下さい。
- ※掲載中に売却済・売却中止・売却価格の変更が生じる場合がございます。予めご了承下さい。





