青森県弘前市クランズスクエア大町アーバンレジデンス
販売物件
- 販売価格2,980万円
- 12階
- 2LDK
- 82.03 ㎡
- Point 1
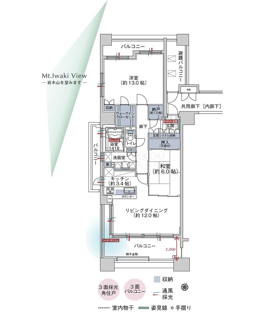
- 高層階12階・約82㎡南西角住戸2LDK
- Point 2
- 開放的な三面バルコニー。約13帖ゆとりの主寝室からは雄大な岩木山を望みます
- Point 3
- 3LDKへ間取変更のご相談承ります
- 角部屋
- 即入居可
- モニタ付インターホン
- 3面バルコニー
- IHクッキングヒーター
- オートバス
- 追焚機能
- 浴室乾燥機
- 温水洗浄便座
- ウォークインクローゼット
- 納戸
Outline物件概要
| 所在地 | 青森県弘前市大字大町3丁目10-3 |
|---|---|
| 交通 | JR奥羽本線「弘前」駅バス3分「市立病院前」バス停徒歩1分 |
| 構造 | RC 造 |
| 階数/階建 | 12階/13階(地下1階) |
| 専有面積 | 壁芯82.03m² |
| バルコニー面積 | 25.72m² |
| 間取内訳 | 2LDK(和 6 洋 13 LDK 15.4) |
| 土地権利 | 所有権 |
| 用途地域 | 商業地域 |
| 築年月 | 2007年2月 |
| 総戸数 | 50戸 |
| 管理会社 | 寿広 |
| 管理形態 | 日勤管理 |
| 管理方式 | 全面委託管理 |
|---|---|
| 管理費 | 9,300円 |
| 修繕積立金 | 9,340円 |
| 現況 | 空室 |
| 引渡日 | 即時 |
| 駐車場 | 有 9,000円/月 ○機械式駐車場空きあり(サイズ要確認) |
| 施工会社 | 宮城開発 |
| 売主 | 宮城開発 |
| ペット飼育 | 小型犬可 猫可 1住戸2匹まで(規約あり) |
| 取引態様 | 専任媒介 |
| 備考 | 【学区】市立大成小学校・市立第三中学校 [情報更新日:2026.1.7] |
Movie動画
〖岩木山ビュー〗本物件の北側眺望をムービーでお確かめいただけます

- ※写真や概要等については、竣工時等過去の写真、物件販売時のパンフレット等の情報を元に記載している為、現況と異なる場合がありますのでご了承下さい。
- ※掲載中に売却済・売却中止・売却価格の変更が生じる場合がございます。予めご了承下さい。





