岩手県盛岡市D'Restia(ディーレスティア)加賀野
販売物件
- 販売価格1,800万円
- 6階
- 2LDK
- 66.36 ㎡
- Point 1
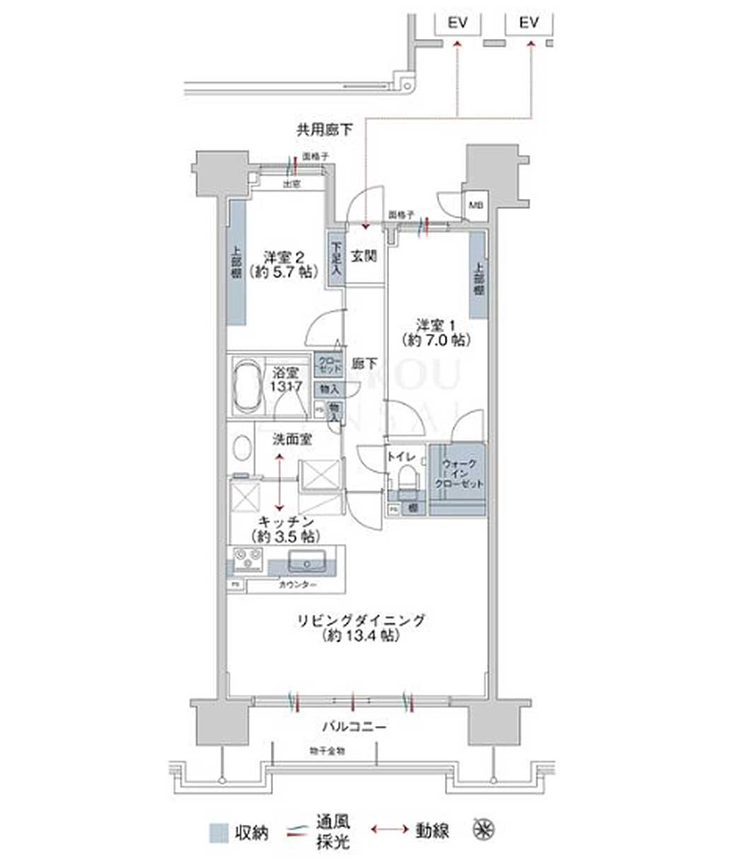
- ウォークインクローゼット付きの主寝室
- Point 2
- 南西向きで開放的なワイドリビング
- Point 3
- 回遊動線のキッチンと洗面室
- 即入居可
- モニタ付インターホン
- オートバス
- 追焚機能
- 浴室乾燥機
- 温水洗浄便座
- ウォークインクローゼット
- 2WAYキッチン
Outline物件概要
| 所在地 | 岩手県盛岡市加賀野3丁目17-30 |
|---|---|
| 交通 | JR山田線「山岸」駅徒歩20分 |
| 構造 | RC 造 |
| 階数/階建 | 6階/14階 |
| 専有面積 | 壁芯66.36m² |
| バルコニー面積 | 9.90m² |
| 間取内訳 | 2LDK(洋 7・5.7 LDK 16.9) |
| 土地権利 | 所有権 |
| 用途地域 | 第一種住居地域 |
| 築年月 | 2006年2月 |
| 総戸数 | 87戸 |
| 管理会社 | 大和ライフネクスト |
| 管理形態 | 日勤管理 |
| 管理方式 | 全面委託管理 |
|---|---|
| 管理費 | 11,060円 |
| 修繕積立金 | 12,950円 |
| その他使用料等 | 町内会費:300円/月 |
| 現況 | 空室 |
| 引渡日 | 即時 |
| 駐車場 | 確認中 |
| 施工会社 | 鉄建建設 |
| 売主 | 大和ハウス工業 |
| ペット飼育 | 小型犬可 猫可 1住戸2匹迄(規約あり) |
| 取引態様 | 専任媒介 |
| 備考 | 【学区】市立城南小学校徒歩12分・市立城東中学校徒歩7分・岩手大学附属小学校徒歩4分・附属中学校徒歩2分[情報更新日:2026.4.24] |
Movie動画
本物件の眺望ムービーがご覧いただけます

- ※写真や概要等については、竣工時等過去の写真、物件販売時のパンフレット等の情報を元に記載している為、現況と異なる場合がありますのでご了承下さい。
- ※掲載中に売却済・売却中止・売却価格の変更が生じる場合がございます。予めご了承下さい。





