岩手県盛岡市SAFE・TECH表参道
販売物件
- 販売価格1,980万円
- 10階
- 3LDK
- 86.22 ㎡
- Point 1
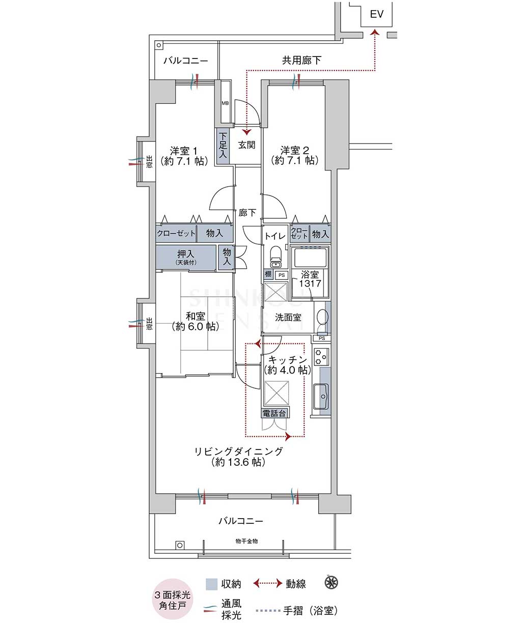
- 10階の開放的な南西角住戸
- Point 2
- 南向きの明るいリビングダイニング
- Point 3
- 7帖超の洋室2部屋と6帖の和室1部屋のゆったりとしたファミリープラン
- 角部屋
- モニタ付インターホン
- 2面バルコニー
- オートバス
- 追焚機能
- 温水洗浄便座
- 2WAYキッチン
Outline物件概要
| 所在地 | 岩手県盛岡市八幡町1-9 |
|---|---|
| 交通 | JR東北本線「盛岡」駅バス10分「盛岡バスセンター」バス停徒歩4分 |
| 構造 | RC 造 |
| 階数/階建 | 10階/14階(地下1階) |
| 専有面積 | 壁芯86.22m² |
| バルコニー面積 | 15.77m² |
| 間取内訳 | 3LDK(和 6 洋 7.1・7.1 LDK 17.6) |
| 土地権利 | 所有権 |
| 用途地域 | 商業地域 |
| 築年月 | 1998年2月 |
| 総戸数 | 63戸 |
| 管理会社 | 寿広 |
| 管理形態 | 日勤管理 |
| 管理方式 | 全面委託管理 |
|---|---|
| 管理費 | 11,300円 |
| 修繕積立金 | 17,300円 |
| 現況 | 空室 |
| 引渡日 | 即時 |
| 駐車場 | 近隣紹介いたします |
| 施工会社 | 清水建設 |
| 売主 | ミネルバ開発 |
| ペット飼育 | 小型犬可 猫可 1住戸1匹迄(規約あり) |
| 取引態様 | 一般媒介 |
| 備考 | 【学区】市立城南小学校・市立城東中学校 [情報更新日:2025.12.25] |
Movie動画
本物件の眺望ムービーがご覧いただけます

- ※写真や概要等については、竣工時等過去の写真、物件販売時のパンフレット等の情報を元に記載している為、現況と異なる場合がありますのでご了承下さい。
- ※掲載中に売却済・売却中止・売却価格の変更が生じる場合がございます。予めご了承下さい。





