岩手県盛岡市クランズスクエア盛岡アーバンレジデンス
販売物件
- 販売価格3,100万円
- 9階
- 3LDK
- 84.80 ㎡
- Point 1
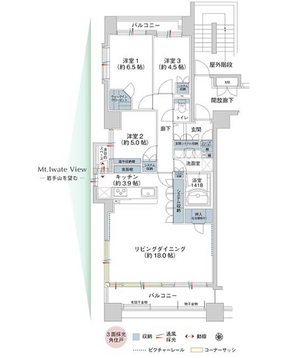
- 開放的なコーナーサッシ採用のワイドスパンリビング
- Point 2
- 西面から岩手山を望みます
- Point 3
- ハイサッシとアウトフレーム工法による圧迫感のない良質な住空間
- 即入居可
- モニタ付インターホン
- 2面バルコニー
- 食器洗浄乾燥機
- オートバス
- 追焚機能
- 浴室乾燥機
- 温水洗浄便座
- ウォークインクローゼット
Outline物件概要
| 所在地 | 岩手県盛岡市本町通3丁目18-40 |
|---|---|
| 交通 | JR東北本線「盛岡」駅バス5分 「中央通三丁目」バス停徒歩1分 |
| 構造 | RC 造 |
| 階数/階建 | 9階/12階(地下1階) |
| 専有面積 | 壁芯84.80m² |
| バルコニー面積 | 15.07m² |
| 間取内訳 | 3LDK(洋 6.5・5・4.5 LDK 21.9) |
| 土地権利 | 所有権 |
| 用途地域 | 商業地域、近隣商業地域 |
| 築年月 | 2006年2月 |
| 総戸数 | 76戸 |
| 管理会社 | 大和ライフネクスト |
| 管理形態 | 日勤管理 |
| 管理費 | 10,770円 |
|---|---|
| 修繕積立金 | 23,320円 |
| その他使用料等 | 町内会費:300円/月 |
| 現況 | 空室 |
| 引渡日 | 即時 |
| 駐車場 | 有 8,500円/月 ○機械式駐車場空き有り(サイズ要確認) |
| 施工会社 | 宮城建設 |
| 売主 | 宮城開発 |
| ペット飼育 | 小型犬可 猫可 1住戸2匹迄(規約あり) |
| 取引態様 | 専任媒介 |
| 備考 | 【学区】市立桜城小学校・市立下橋中学校 [情報更新日:2026.1.23] |
- ※写真や概要等については、竣工時等過去の写真、物件販売時のパンフレット等の情報を元に記載している為、現況と異なる場合がありますのでご了承下さい。
- ※掲載中に売却済・売却中止・売却価格の変更が生じる場合がございます。予めご了承下さい。





