秋田県秋田市レーベン秋田 THE MID TOWER
販売物件
- 販売価格3,680万円
- 12階
- 3LDK
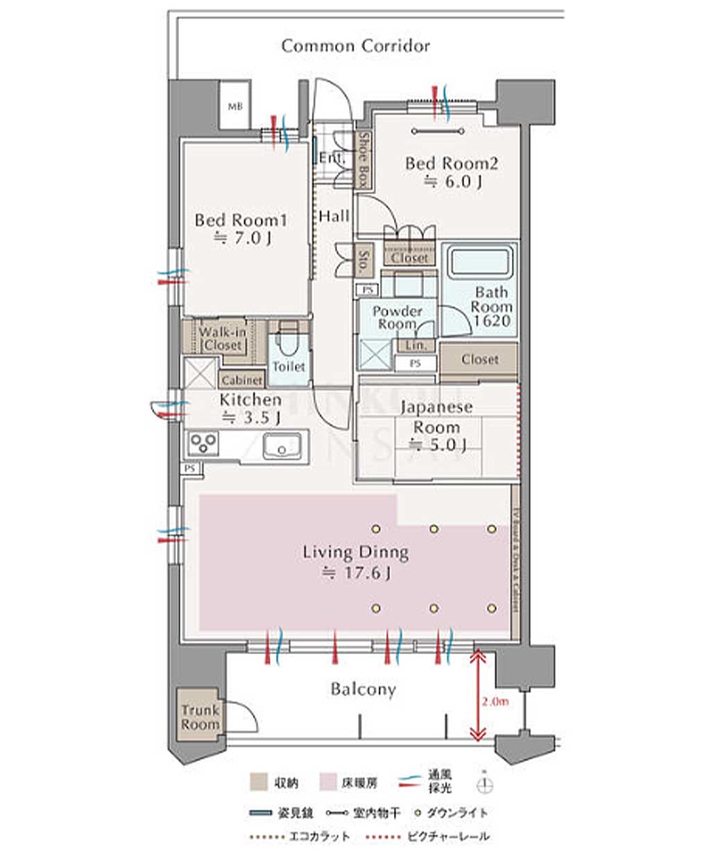
- 87.35 ㎡
- Point 1
- 高層階12階・約87平米・南西角住戸3LDK+ウォークインクローゼット
- Point 2
- 南面ワイドスパンのリビングに床暖房敷設
- Point 3
- エコカラットやピクチャーレール、室内物干し、ダウンライトなどオプション多数
- 角部屋
- 床暖房
- モニタ付インターホン
- 食器洗浄乾燥機
- オートバス
- 追焚機能
- 浴室乾燥機
- 温水洗浄便座
- ウォークインクローゼット
- トランクルーム
- 設計・建設住宅性能評価書あり
Outline物件概要
| 所在地 | 秋田県秋田市中通3-2-17 |
|---|---|
| 交通 | JR奥羽本線「秋田」駅徒歩13分 |
| 構造 | RC 造 |
| 階数/階建 | 12階/15階 |
| 専有面積 | 壁芯87.35m² |
| バルコニー面積 | 12.95m² |
| 間取内訳 | 3LDK(和 5 洋 7・6 LDK 21.1) |
| 土地権利 | 所有権 |
| 用途地域 | 商業地域 |
| 築年月 | 2017年9月 |
| 総戸数 | 57戸 |
| 管理会社 | レーベンコミュニティ |
| 管理形態 | 日勤管理 |
| 管理方式 | 全面委託管理 |
|---|---|
| 管理費 | 22,100円/月 |
| 修繕積立金 | 11,480円/月 |
| その他使用料等 | インターネット使用料:1,925円/月 |
| 現況 | 空室 |
| 引渡日 | 相談 |
| 駐車場 | 1住戸1台確保可能(区画・サイズ要確認) |
| 施工会社 | 沢木組 |
| 売主 | タカラレーベン |
| ペット飼育 | 小型犬可 猫可 1住戸2匹迄(規約あり) |
| 取引態様 | 専任媒介 |
| 備考 | 【学区】市立中通小学校徒歩6分・市立秋田南中学校 [情報更新日:2026.4.24] |
- ※写真や概要等については、竣工時等過去の写真、物件販売時のパンフレット等の情報を元に記載している為、現況と異なる場合がありますのでご了承下さい。
- ※掲載中に売却済・売却中止・売却価格の変更が生じる場合がございます。予めご了承下さい。





