岩手県盛岡市レールシティ本町通
販売物件
- 販売価格1,980万円
- 1階
- 3LDK
- 72.21 ㎡
- Point 1
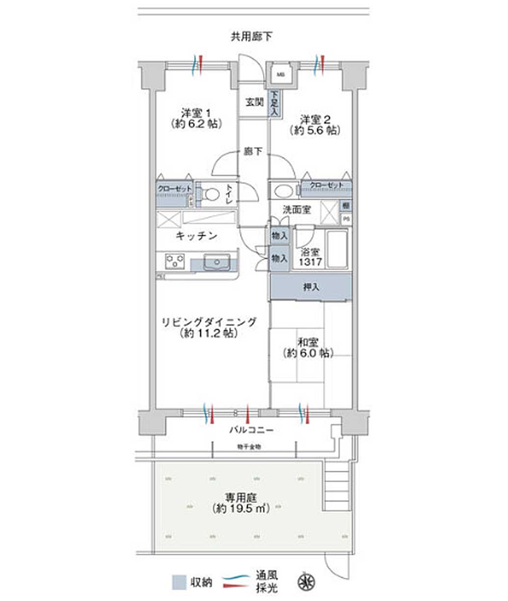
- 1階・専用庭付3LDKのお部屋
- Point 2
- 足音や生活音が下階に響く心配なくお暮しいただけます
- Point 3
- 仁王小学校が近く、徒歩圏内の商業施設も充実しておりファミリーにおすすめの立地
- 専用庭
- 追焚機能
- 温水洗浄便座
- 都市ガス
- システムカウンターキッチン
Outline物件概要
| 所在地 | 岩手県盛岡市本町通3丁目11-10 |
|---|---|
| 交通 | JR山田線「上盛岡」駅徒歩1分 |
| 構造 | RC 造 |
| 階数/階建 | 1階/6階(地下1階) |
| 専有面積 | 壁芯72.21m² |
| バルコニー面積 | 9.75㎡ 専用庭19.5m² |
| 間取内訳 | 3LDK(和 6 洋 6.2・5.6 LDK 14.2) |
| 土地権利 | 所有権 |
| 用途地域 | 準工業地域 |
| 築年月 | 1997年5月 |
| 総戸数 | 53戸 |
| 管理会社 | 東急コミュニティー |
| 管理形態 | 日勤管理 |
| 管理方式 | 全面委託管理 |
|---|---|
| 管理費 | 12,000円 |
| 修繕積立金 | 15,400円 |
| その他使用料等 | 専用庭使用料:500円/月 |
| 現況 | 空室 |
| 引渡日 | 相談 |
| 駐車場 | 確認中 |
| 施工会社 | 住友建設 |
| 売主 | 日本国有鉄道清算事業団 |
| ペット飼育 | 不可 |
| 取引態様 | 専任媒介 |
| 備考 | 【学区】市立仁王小学校徒歩2分・市立上田中学校徒歩8分 [情報更新日:2026.4.24] |
- ※写真や概要等については、竣工時等過去の写真、物件販売時のパンフレット等の情報を元に記載している為、現況と異なる場合がありますのでご了承下さい。
- ※掲載中に売却済・売却中止・売却価格の変更が生じる場合がございます。予めご了承下さい。





