青森県弘前市ポレスター駅前公園
販売物件
- 販売価格2,800万円
- 13階
- 3LDK
- 85.81 ㎡
- Point 1
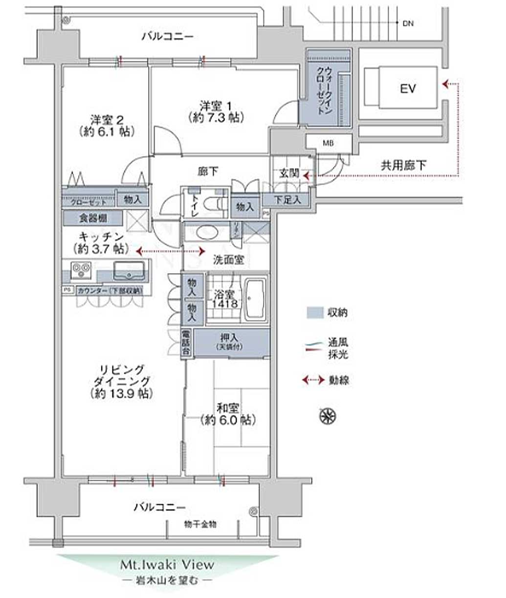
- リビング側から岩木山、洋室側バルコニーから駅方向・弘前ねぷたまつりを楽しめます
- Point 2
- 開放的な二面バルコニー
- Point 3
- 全居室6帖超あり、主寝室には大容量のウォークインクローゼットがございます
- モニタ付インターホン
- 2面バルコニー
- IHクッキングヒーター
- 食器洗浄乾燥機
- オートバス
- 追焚機能
- 浴室乾燥機
- 温水洗浄便座
- ウォークインクローゼット
- 高層階
Outline物件概要
| 所在地 | 青森県弘前市大字駅前町17-1 |
|---|---|
| 交通 | JR奥羽本線「弘前」駅徒歩2分 |
| 構造 | RC 造 |
| 階数/階建 | 13階/14階 |
| 専有面積 | 壁芯85.81m² |
| バルコニー面積 | 20.43m² |
| 間取内訳 | 3LDK(和 6 洋 7.3・6.1 LDK 17.6) |
| 土地権利 | 所有権 |
| 用途地域 | 商業地域 |
| 築年月 | 2004年1月 |
| 総戸数 | 76戸 |
| 管理会社 | 太平ビルサービス |
| 管理形態 | 日勤管理 |
| 管理方式 | 全面委託管理 |
|---|---|
| 管理費 | 13,200円 |
| 修繕積立金 | 19,390円 |
| その他使用料等 | 町内会費:800円/年 |
| 現況 | 空室 |
| 引渡日 | 相談 |
| 駐車場 | 近有 8,250円/月 ○平面駐車場(敷地内・近隣駐車場)利用については要確認 |
| 施工会社 | 栗本建設工業 |
| 売主 | マリモ |
| ペット飼育 | 小型犬可 猫可 1住戸1匹迄(規約あり) |
| 取引態様 | 専任媒介 |
| 備考 | 【修繕・交換箇所】 ○トイレ便座 ○灯油ボイラー ○畳 ○キッチン水栓 ○リビングエアコン 【学区】市立大成小学校・市立第三中学校 [情報更新日:2026.1.23] |
- ※写真や概要等については、竣工時等過去の写真、物件販売時のパンフレット等の情報を元に記載している為、現況と異なる場合がありますのでご了承下さい。
- ※掲載中に売却済・売却中止・売却価格の変更が生じる場合がございます。予めご了承下さい。





