長野県長野市サーパス県町
販売物件
- 販売価格3,480万円
- 4階
- 3LDK
- 68.42 ㎡
- Point 1
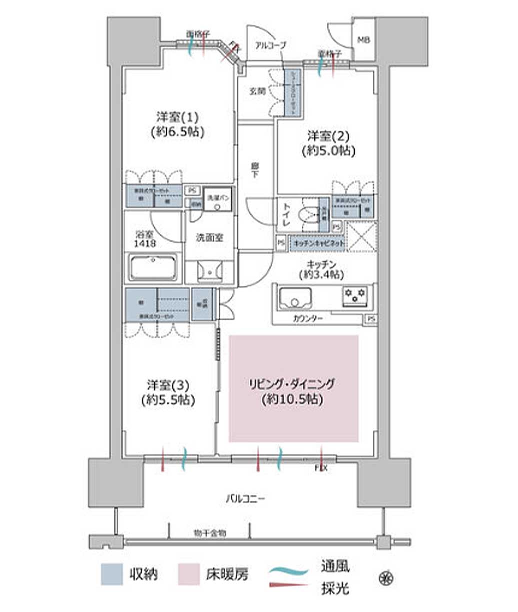
- 中心部アドレス×築8年の4階・南向き3LDK
- Point 2
- アクセントクロスや調湿脱臭効果が期待できるエコカラットを随所に採用
- Point 3
- キッチンキャビネット、家具式収納、リビング床暖房など居住性良好な設備が叶います
- 床暖房
- 即入居可
- モニタ付インターホン
- 食器洗浄乾燥機
- エアコン
- オートバス
- 追焚機能
- 浴室乾燥機
- 温水洗浄便座
- カウンターキッチン
Outline物件概要
| 所在地 | 長野県長野市 大字南長野県町528-10 |
|---|---|
| 交通 | 長野電鉄長野線「権堂」駅徒歩10分、「ホテル国際21」バス停徒歩5分 |
| 構造 | RC 造 |
| 階数/階建 | 4階/15階 |
| 専有面積 | 壁芯68.42m² |
| バルコニー面積 | 13.40m² |
| 間取内訳 | 3LDK(洋 6.5・5.5・5 LDK 13.9) |
| 土地権利 | 所有権 |
| 用途地域 | 商業地域 |
| 築年月 | 2017年5月 |
| 総戸数 | 56戸 |
| 管理会社 | 穴吹コミュニティ |
| 管理形態 | 日勤管理 |
| 管理方式 | 全面委託管理 |
|---|---|
| 管理費 | 6,800円 |
| 修繕積立金 | 12,700円 |
| その他使用料等 | インターネット保守管理費:2,835円/月、専有部警備料SOS24利用料:495円/月、エスコートサービス利用料:385円/月 |
| 現況 | 空室 |
| 引渡日 | 即時 |
| 駐車場 | 有 12,000円/月 ○敷地内平面駐車場・機械式駐車場空きあり(都度要確認) |
| 施工会社 | 穴吹工務店 |
| 売主 | 長野都市計画 |
| ペット飼育 | 小型犬可 猫可 1住戸2匹まで(規約あり) |
| 取引態様 | 専任媒介 |
| 備考 | 【学区】市立加茂小学校・市立西部中学校 [情報更新日:2026.1.28] |
- ※写真や概要等については、竣工時等過去の写真、物件販売時のパンフレット等の情報を元に記載している為、現況と異なる場合がありますのでご了承下さい。
- ※掲載中に売却済・売却中止・売却価格の変更が生じる場合がございます。予めご了承下さい。





