岩手県盛岡市サンデュエル上田
販売物件
- 販売価格2,080万円
- 7階
- 3LDK
- 75.14 ㎡
- Point 1
- 【投資用・オーナーチェンジ物件】年間予定賃料収入147.6万円、利回り7.09%
- Point 2
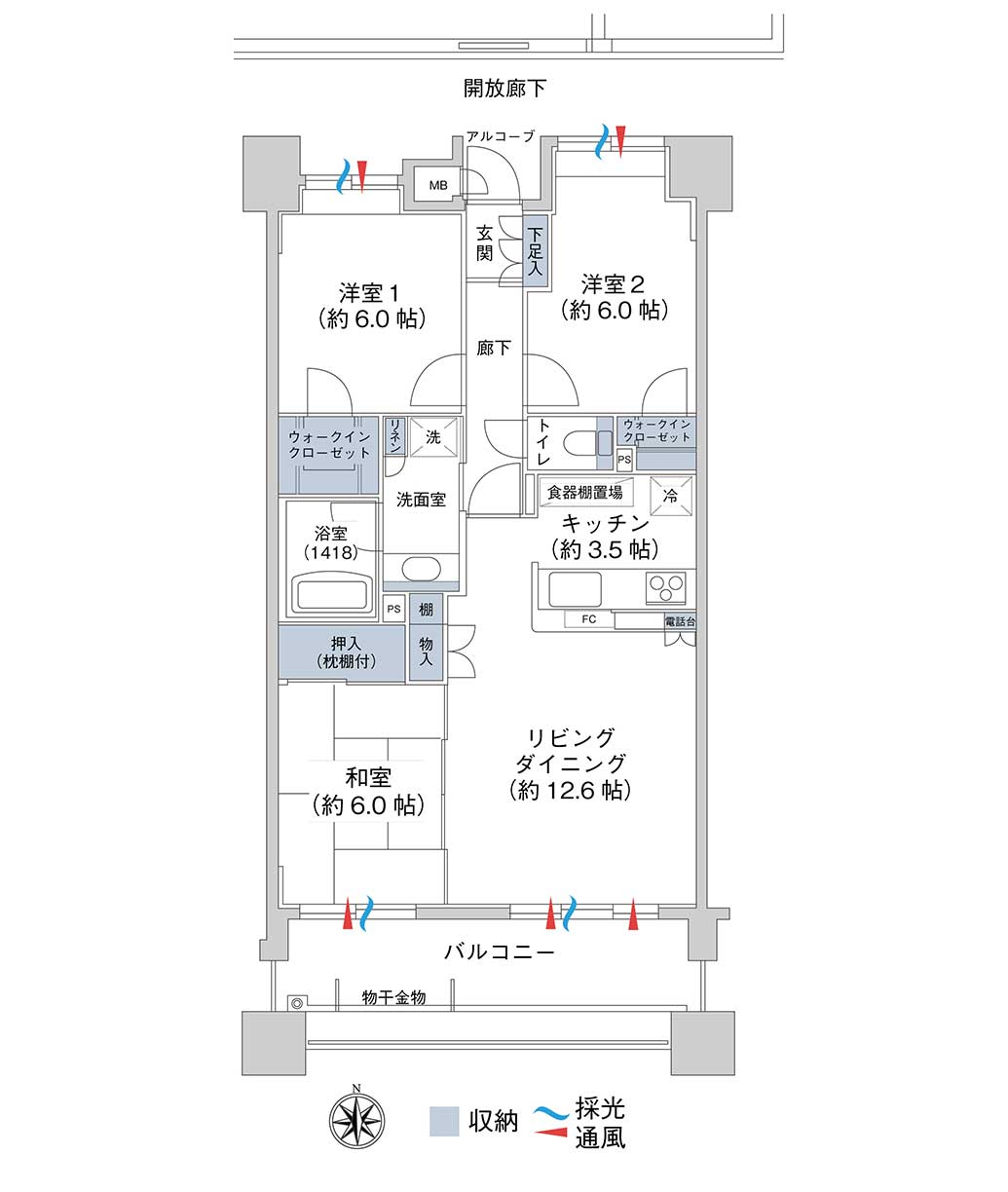
- 2箇所にウォークインクローゼットを備える南向き3LDK
- Point 3
- 【原則、ご自身ではお住まいいただけません】
- モニタ付インターホン
- IHクッキングヒーター
- 食器洗浄乾燥機
- オートバス
- 追焚機能
- 浴室乾燥機
- 温水洗浄便座
- ウォークインクローゼット
- 防犯カメラ
- セントラルシステム
Outline物件概要
| 所在地 | 岩手県盛岡市上田4丁目18-40 |
|---|---|
| 交通 | JR東北本線「盛岡」駅バス13分「理工学部東口」バス停徒歩3分 |
| 構造 | RC 造 |
| 階数/階建 | 7階/10階 |
| 専有面積 | 75.14m² |
| バルコニー面積 | 13.40m² |
| 間取内訳 | 和 約6.0帖 洋 約6.0帖・約6.0帖 LDK 約16.1帖 |
| 土地権利 | 所有権 |
| 用途地域 | 第一種住居専用地域 |
| 築年月 | 2004年11月 |
| 総戸数 | 48戸 |
| 管理会社 | 日本ハウズイング |
| 管理形態 | 日勤管理 |
| 管理方式 | 全面委託管理 |
|---|---|
| 管理費 | 10,500円/月 |
| 修繕積立金 | 19,900円/月 |
| 現況 | 賃貸中 |
| 引渡日 | 相談 |
| 駐車場 | 有 9,500円/月 |
| 施工会社 | 白石 |
| 売主 | サンシティ |
| ペット飼育 | 小型犬可 猫可 |
| 取引態様 | 専任媒介 |
| 備考 | ■学区/市立上田小学校・市立上田中学校 [情報更新日]2025.11.18 |
- ※写真や概要等については、竣工時等過去の写真、物件販売時のパンフレット等の情報を元に記載している為、現況と異なる場合がありますのでご了承下さい。
- ※掲載中に売却済・売却中止・売却価格の変更が生じる場合がございます。予めご了承下さい。





